Koteja
Omakotitalo, 110,0 m2
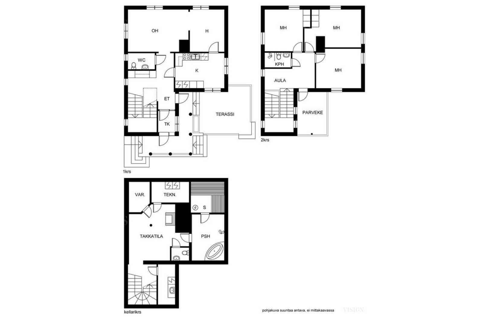
5-6 h,k,sauna,psh,khh,3 wc, piharakennus
335 000,00 €
map Laukkatie 11, 13130 Hämeenlinna
my_location Katso sijainti kartalla
Sovi esittely, kohdetta välittää:
- Terhi Kallio
- Kiinteistönvälittäjä, LKV, KJK, VuT, LVV
- mail_outlineLähetä sähköpostia
- smartphoneSoita 0500 480770
Sovi esittely, kohdetta välittää:
- Terhi Kallio
- Kiinteistönvälittäjä, LKV, KJK, VuT, LVV
- mail_outlineLähetä sähköpostia
- smartphoneSoita 0500 480770
Laukkatie 11, Hämeenlinna, 10/ Pullerinmäki
Perheelliselle paratiisi olisi tämä talo. Kolme kerrosta tyyliä ja tunnelmaa. Arjen sujuvuutta suunnittelussa ajateltu. Kulmaikkunoin varustettu olohuone ja aikuisten makuuhuone keskikerroksessa. Kaunis harmaa Domus- keittiö . Keskikerroksesta käyskentelet terassille kahvittelemaan. Katseenvangitsijana keskellä taloa upea portaikko.. Yläkerrassa kolmen makuuhuoneen lisäksi aula, kylpyhuone sekä parveke. Alin kerros takkahuoneineen kutsuu rentoutumaan. Tilava sauna, puulämmitteinen kiuas ja poreisiinkin pääsee kulma- ammeeseen. Perusteellisesti peruskorjattu ja laajennettu, arkkitehdin suunnittelema ja rakennusliikkeen toteuttama. Maalämpö, edulliset asuinkulut. Oma tontti, jonka takarajalla piharakennus missä sijaitsee pihasauna sekä puuliiteri ja varastotilaa. Kaikki lasten harrastukset ja koulut turvallisen matkan päässä, unohtamatta jäähallia ja Ahveniston lenkkipolkuja.Ulkoapäin pieni ja sievä, sisätiloiltaan toimiva. Ihastumaan sopimuksen mukaan.
Kuvat
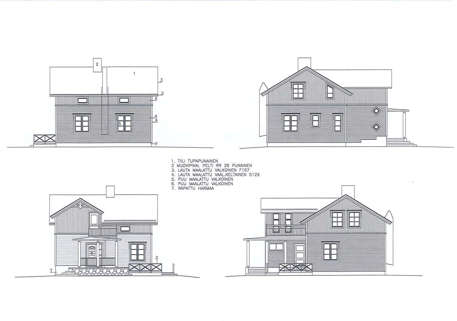
Julkisivua pihan puoleltaOlohuoneessa kulmaikkunatOlohuonettaKaunis Domus- keittiöKeskikerroksen makuuhuoneKeskikerroksen wcKeskikerroksen eteinen ja ulko- ovi terasilleKeskikerroksen eteinenPortaat yläkertaanKoti kulmatontillaYläkerran aulaYläkerran makuuhuoneYläkerran makuuhuoneYläkerran kylpyhuoneYläaulasta parvekkeelleYläkerran parvekeKadulta katsottunaJulkisivutAlakerran viihtyisä takkahuoneSauna ja puulämmitteinen kiuasTilava pesuhuonePoreammeAlakerran wc ja pala pesuhuonettaKodinhoitohuone alakerrassaUrheiluareenat vieressäLekkauskuvaKiinteistö kartalla Kiinteistö ilmakuvassaPiharakennusSauna piharakennuksessaAsemapiirros
Perustiedot
| Kohdenumero | 21681772 |
| Sijainti | Hämeenlinna, 10/ Pullerinmäki Laukkatie 11 |
| Tyyppi | Omakotitalo |
| Huoneistoselitelmä | 5-6 h,k,sauna,psh,khh,3 wc, piharakennus |
| Huoneiden lukumäärä | 5 |
| Makuuhuoneiden lukumäärä | 4 |
| Sauna | Oma sauna |
| Takka | Takka. Tyylikäs ja varaava Tiileri- takka |
| Parveke | Ei |
| Asuinpinta-ala | 110,0 m2 |
| Muut tilat | 99,0 m2 |
| Kokonaispinta-ala | 209,5 m2 |
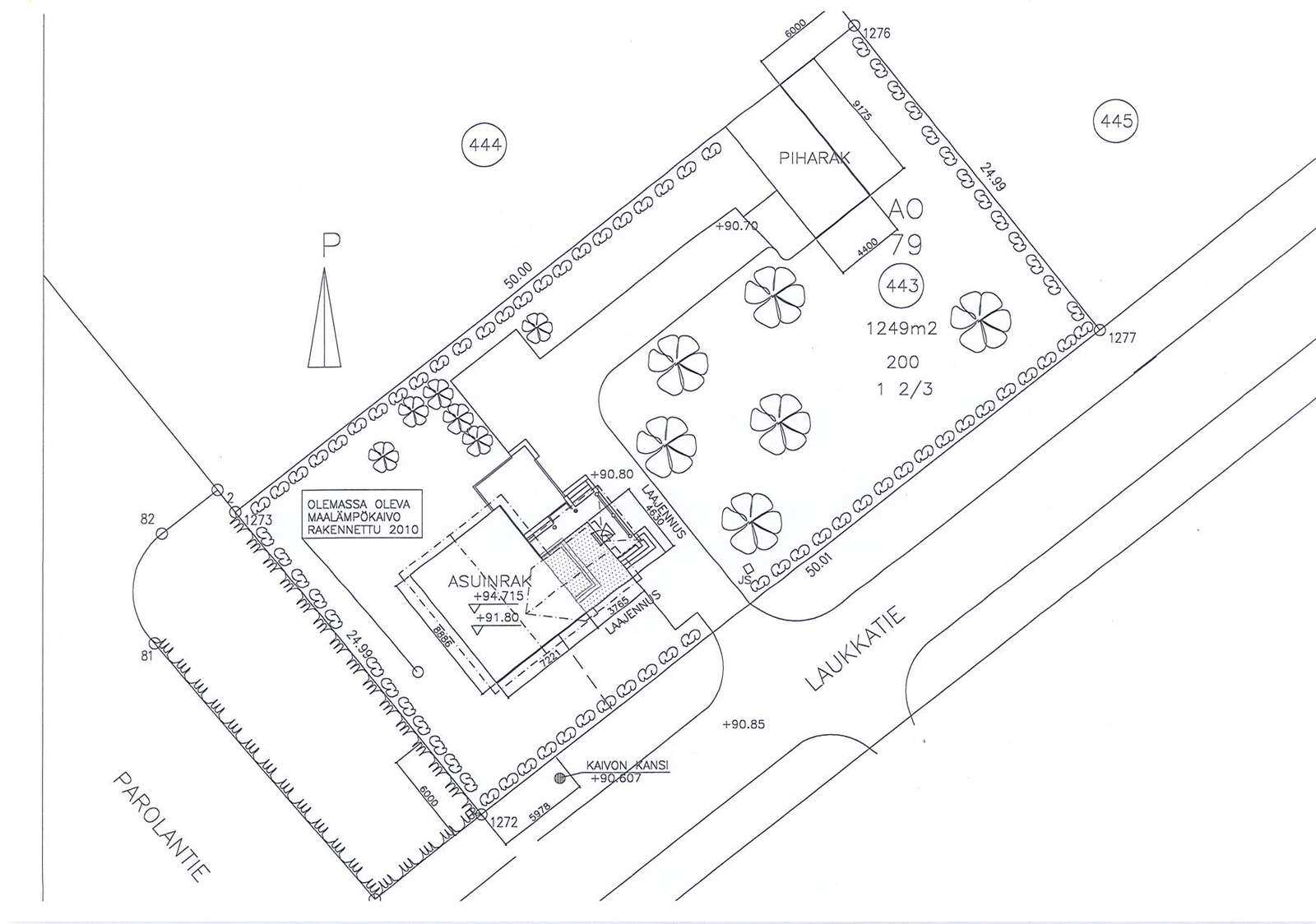
| Muut rakennukset | Saunarakennus, puuliiteri, talousrakennus |
| Yleiskunto | Hyvä |
| Kerros | 1 / 3 |
| Rakennusvuosi | 2012 |
| Käyttöönottovuosi | 2012 |
| Loppukatselmusvuosi | 2016 |
| Tehdyt korjaukset ja remontit | Täydellinen peruskorjaus 2010-2012; Talon kattoprofiili nostettiin ja kellari kaivettiin alaspäin. Ikkunat uusittiin ja niiden paikat muuttuivat.Talotekniikka uudistettiin täysin siirtymällä painovoimaisesta ilmanvaihdosta koneelliseen ilmanvaihtoon lämmöntalteenotolla. Öljylämmityksestä seinäpattereilla siirryttiin maalämpöön vesikiertoisella lattialämmityksellä. Talon koko layout muutettiin laajennuksella. Talon alapohja rakennettiin uudestaan alkaen anturoista , sokkeli rakennettiin uudelleen, tuplasalaojat ja hulevesijärjestelmät rakennettiin. Yläpohja on uusi, katosta alkaen. Keittiö, kodinhoitohuone ja kaikki kolme wc: tä ovat uusia kuten myös saunaosasto. |
| Vapautuu | Sopimuksen mukaan |
Hinta ja kustannukset
| Velaton hinta | 335 000,00 € |
| Myyntihinta | 335 000,00 € |
| Kiinteistövero | 501,00 € / vuosi |
Tilat ja materiaalit
| Tilojen kuvaus | Varaava Tiilerin takka alakerran takkahuoneessa |
| Lattia | Tasokas Tarkett vinyylilattia |
| Keittiön varustus | Jääkaappi ja pakastin: jääkaappi/pakastin Seinät: kaakeli Lattia: vinyyli Muut varusteet: mikroaaltouuni, astianpesukone, liesituuletin / hormi Liesi/uuni: induktio |
| Olohuone | Kivat kulmaikkunat olohuoneesta Seinät: tapetti Lattia: vinyyli |
| Makuuhuone | Makuuhuoneista kolme yläkerrassa, yksi alakerrassa |
| Kylpyhuone | Varusteet: poreamme, lattialämmitys, suihku Seinät: kaakeli Lattia: laatta |
| Kodinhoitohuone | Tilava kodinhoitohuone alakerrassa |
| Erillinen WC | Yläkerrassa suihkukaapilla varustettu kylpyhuone. Keskikerroksessa ja alakerrassa erilliset wc:t. Piharakennuksessa myös wc. Lattia: laatta Varusteet: lattialämmitys, suihku Seinät: kaakeli Lukumäärä: 4 |
| Saunan kuvaus | Talossa sisällä puulämmitteinen IKI Orginal-kiuas. Varaus myös sähkökiukaalle . Piharakennuksessa sähkösauna |
| Saunan kiuas | Puukiuas |
| Saunan pinnat | Seinät: puu Lattia: laatta |
| Muut huoneet | Aula, Takkahuone, Terassi |
Lisätiedot
| Yleiskunto | Täydellisen peruskorjauksen/ laajennuksen jälkeen. Julkisivumaalaus 2023. Kattohuolto 2018 ja 2023. IV- kanavien nuohous, salaojien kuntotarkastus sekä salaojakaivon pumpun ja vesivahdin vaihto 2025. |
| Lämmitysjärjestelmä | Maalämpöpumpun peruskorjaus (kompressori mm. vaihdettu) 2025 ja lauhdutin) |
| Internet | Valokuitu |
| TV | Kiinteistössä on kaapeli-tv-liittymä |
| Kiinteistötunnus | 109-10-79-443 |
| Tontin omistus | Oma |
| Tontin pinta-ala | 1 249,0 m2 |
| Lisätietoja tontista | Tuija- ja pensasaitojen rajaama tontti. Tontilla omenapuita. Suuri tammi takarajalla.Kasteluvettä omasta kaivosta. |
| Rakennusmateriaali | Puu |
| Katto | Tyyppi: Harjakatto Kate: Tiili Kunto: Uusittu 2010-2012 peruskorjauksessa |
| Viemäri | Kunnan. Kaikki viemärit uusittu peruskorjauksen yhteydessä |
| Vesi | Kunnan, kaivo |
| Energiatodistus | Ei ole |
| Energialuokka | Energiatodistus teetetään kuntotarkastuksen yhteydessä |
| Maasto | Nurmikkoinen piha- alue. Vanhat omenapuut. Kaivo kasteluun. Tilaa on leikkiä ja pelata |
| Kaavoitus | Asemakaava |
| Lisätietoja kaavoituksesta | Hämeenlinnan kaupunki 03-6211/ kaavoitus |
| Muuta kauppaan kuuluvaa | Sälekaihtimet/rullaverhot, keskuspölynimurin varaus, hälytys- /valvontajärjestelmä |
| Viat ja vahingot | Vesivahinko: ei Kosteusvahinko: ei Home-/mikrobi- tai muita sisäilmaongelmia: ei Muita erityisiä ongelmia: ei |
| Lisätietoja | Tie perille, sähköliittymä siirtyy. Muita siirtyviä liittymiä: Kaapeli tv |
Palvelut ja liikenneyhteydet
| Palvelut | Tiiriön palvelut. K- kauppa Parolantie. Kotipizza Parolantie |
| Liikenneyhteydet | Bussipysäkki Parolantiellä. Hyvät pyörä - ja kävelytiet kaikkialle |
| Koulut | Kaurialan koulut |
| Päiväkodit | Karhuryhmän päiväkoti Turuntie. JAP- päiväkoti Poltinaho |
| Muuta | Pullerin kenttä ja Loimua- areena vieressä . Jäähallille lyhyt matka. Ahveniston lenkkipolut ja uimaranta lähellä. |
Välitysliike
| Yhteystiedot |
Kiinteistönvälitys Terhi K LKV Eteläkatu 9, 13100 HÄMEENLINNA toimisto@terhiklkv.fi 03-675 6711 |
infoTäydelliset kohdetiedot saat tilaamalla myyntiesitteen, ota yhteyttä välittäjään.
Sovi esittely, kohdetta välittää:
- Terhi Kallio
- Kiinteistönvälittäjä, LKV, KJK, VuT, LVV
- mail_outlineLähetä sähköpostia
- smartphoneSoita 0500 480770
- Omakotitalo, 110 m2
- 5-6 h,k,sauna,psh,khh,3 wc, piharakennus
- map Laukkatie 11, 13130 Hämeenlinna
- my_location Katso sijainti kartalla
Oletko myymässä kotiasi?
Kutsu minut myymään kotisi. Teen sen minkä lupaan.
Kanssani tiedät myös aina kuka kotiasi esittelee.